Home
Info
Gallery
Sightseeing
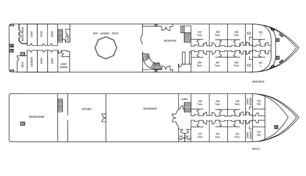
Deck Plan
Location
Accommodation
Deluxe Cabin
Presidential Suite
Itinerary
Dining & Outlet
Garnet Restaurant
Ruby bar
Sun Deck
Contact Us
BOOK NOW
Home
Info
Gallery
Sightseeing
Deck Plan
Location
Accommodation
Deluxe Cabin
Presidential Suite
Itinerary
Dining & Outlet
Garnet Restaurant
Ruby bar
Sun Deck
Contact Us
BOOK NOW
Deck Plan
Plan A
Plan B